La autorización de Uso excepcional en Suelo Rústico es un procedimiento establecido en la normativa de Urbanismo de Castilla y León que, como su propio nombre indica, es la autorización previa a la licencia urbanística para la ejecución de un uso concreto en suelo rústico.
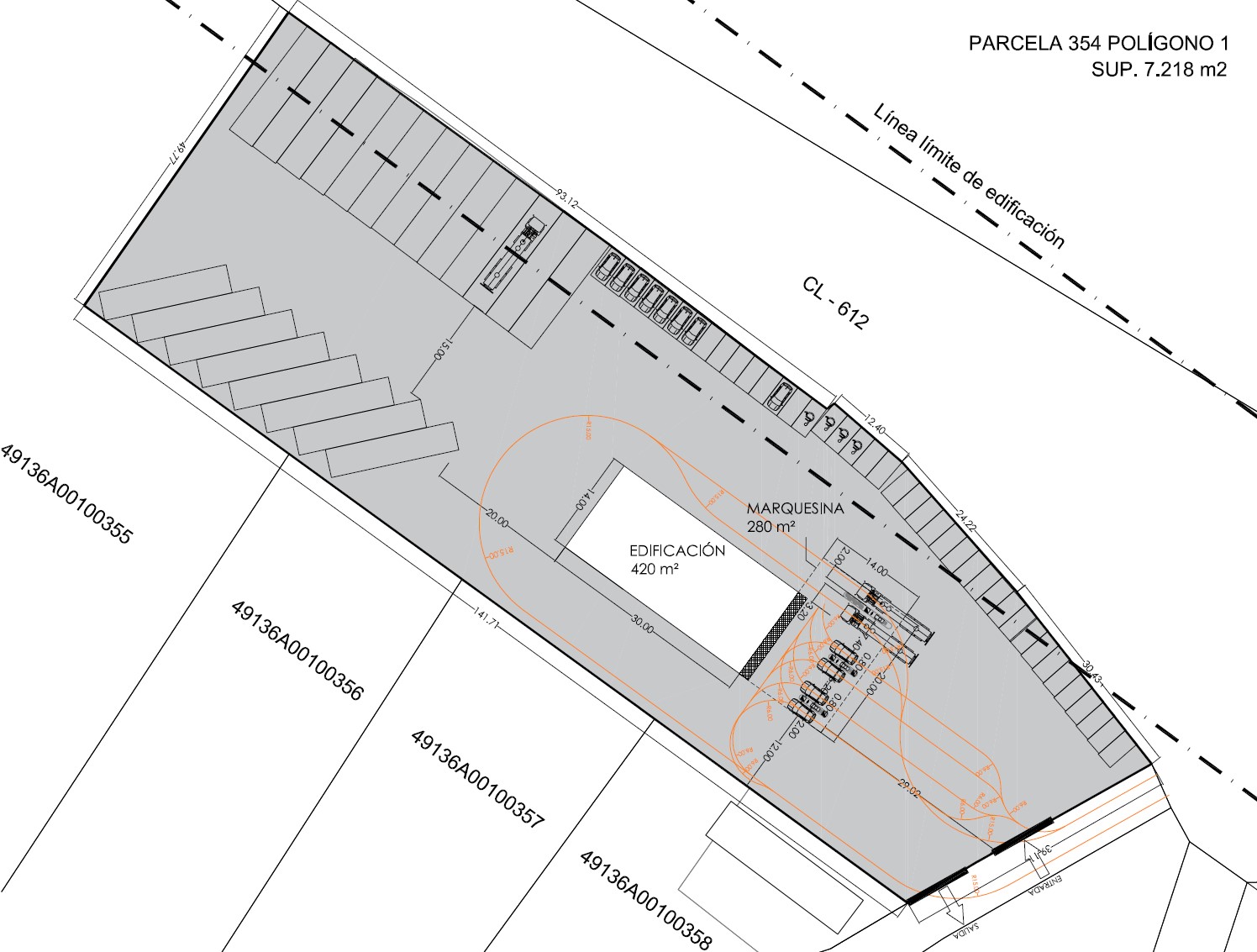
En esta caso se trata de una Estación de Servicio con Tienda y Cafetería Restaurante en Monfarracinos, Zamora, situado en las inmediaciones de la A66, también conocida como “Ruta de la Plata”, que discurre desde Gijón a Sevilla, con 366 km. de recorrido.
La edificación, con una superficie aproximada de 420 m2, se divide en tres zonas, la destinada propiamente al uso de estación de servicio con una superficie de 16,80 m2, la destinada a tienda con una superficie aproximada de 64,80 m2 y la destinada a cafetería-restaurante, con una superficie de 274,40 m2. Además cuenta con una terraza exterior de aproximadamente 64,00 m2.

